1、引言
隨著航空航天、兵器等工業的發展,對結構件具有重量輕、強度高、耐熱耐蝕等性能的要求越來越強烈。TC4鈦合金是一種中等強度的α-β型雙相鈦合金,具有密度小、比強度及比剛度高、耐熱耐蝕性能好等優異的綜合性能,適應了航空航天、兵器、船舶等工業發展的需要,在航空航天、兵器等工業中的應用將越來越廣泛。
但TC4鈦合金在常溫下強度高、塑性低、加工硬化強烈,易開裂,不利于室溫條件下旋壓成形,給工業生產帶來很大的困難。據相關資料指出,美國制管技術公司曾于20世紀80年代發表文章指出TC4鈦合金冷旋是可行的,變形量可達38%;但同時又宣布,因許多因素未搞清楚,不具備工業生產條件。截止目前,國內外尚未發現TC4鈦合金進行商業化冷旋生產的報道。可見,TC4鈦合金的冷旋成形是非常困難的。同時,TC4鈦合金導熱率低,對變形溫度十分敏感,使得該合金薄壁筒形件的熱旋成形難度很大,急需開展相關研究。為此,本文以TC4鈦合金薄壁筒形件為對象,開展了熱旋成形工藝及優化研究,成形出了質量合格的一端帶內法蘭的TC4鈦合金筒形件,為 類似鈦合金筒形件旋壓提供了參考。
2、熱旋方案設計
2.1 零件要求
本文研究的TC4鈦合金筒形件的形狀、尺寸及主要技術要求如圖1所示,室溫機械性能要求如表1所示。由圖l可知,該制件是一端帶內法蘭的筒形件,對幾何形狀和尺寸精度要求非常嚴格。由表1可知,該制件的機械性能要求很高,需要通過塑性變形和固溶時效熱處理才能獲得。

2.2坯料設計
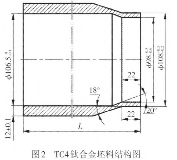
根據圖l所示制件的結構特點,該制件采用正向加熱旋壓工藝成形。同時根據TC4鈦合金各種溫度下的拉伸機械性能參數和所使用的旋壓機床技術參數,參考我公司成旋壓成形的TB2鈦合金筒形件、TC11鈦合金筒形件等相關鈦合金殼體的旋壓工藝,并考慮到熱旋氧化的影響,進行了旋壓坯料的設計?。坯料結構如圖2所示。該坯料尺寸包括了成品機械加工余量及去氧化皮余量的要求。實驗證明是合理的。

2.3模具設計
設計的TC4鈦合金旋壓成形用芯模的工作部分尺寸及要求如圖3所示,芯模用材料選用H13(4Cr5Movlsi)中耐熱韌性熱作模具鋼,采用整體熱處理以保證芯模的硬度53~56HRC,并防止熱旋過程中芯模因組織性能不一致而發生變形、開裂等現象。為了保證制件內表面粗糙度要求,對芯模外表面工作部分進行了拋光處理。

旋輪的形狀、幾何尺寸及精度要求如圖4所示。

旋輪工作部分的幾何參數是根據TC4鈦合金高溫性能、變形方式和旋壓工藝參數,并參考TB2鈦合金、TC11鈦合金殼體旋壓工藝而確定的。旋輪用材料選用高耐熱熱作模具鋼,采用整體熱處理以保證旋輪硬度50~54HRC,并對旋輪工作型面進行了拋光處理。
3、熱旋工藝試驗
根據TC4鈦合金筒形件的結構特點及技術要求,分析并研究了TC4鈦合金的機械性能及熱處理工藝參數對其機械性能的影響規律,擬定了成形工藝:擠壓坯料-->下料-->固溶處理-->機械加工旋壓坯料-->加熱旋壓-->固溶處理-->加熱旋壓-->時效處理-->機械加工定尺。
TC4鈦合金筒形件的加熱旋壓成形試驗在我公司PS-SXYl650CNC型雙滑臺雙旋輪數控旋壓機上進行的,該旋壓機床的主要技術參數如表2所示。試驗過程中,將芯模預熱至350℃以上,在電爐內將坯料升溫至500℃并保溫5min;然后將坯料套進芯模上,頂上尾頂塊,啟動主軸,使坯料隨芯模一起旋轉運動。同時采用2把氧一乙炔噴槍對坯料及芯模進行加熱,采用紅外測溫儀進行在線溫度測量和控制,到溫后即進行旋壓成形試驗。

4、試驗結果及分析
TC4鈦合金筒形件加熱旋壓試驗結果表明,所設計的芯模及旋輪是合適的,旋壓道次和芯模轉速(在不發生共振條件下)對旋壓成形的影響很小,可不予考慮。影響旋壓成形的主要工藝參數為加熱溫度、旋輪進給比、道次壁厚減薄率和總壁厚減薄率。
4.1加熱溫度的影響
加熱旋壓的目的是提高TC4鈦合金的可旋性,降低其變形抗力,試驗中所記錄的溫度是用紅外測溫儀測量的坯料表面加熱溫度。在旋壓成形過程中,由于坯料與芯模、旋輪接觸后,溫度很快降低,變形區的實際溫度遠低于所觀測的坯料加熱溫度。從試驗結果看,當坯料的加熱溫度低于5500C時,TC4鈦合金管坯的壁厚減薄率累計達到40%時,就發生了嚴重的開裂現象,如圖5a所示。這是由于坯料溫度過低(變形區實際變形溫度可能低于500℃),材料塑性偏低造成的。當坯料的加熱溫度高于800。C時,旋壓過程中,材料易發生堆積而造成旋壓無法進行。同時,溫度越高,TC4鈦合金氧化越嚴重。根據實驗結果,確定旋壓加熱溫度為600℃~750℃,在該 溫度條件下,旋壓成形順利進行,旋壓成形的管件如圖5b所示。

4.2旋輪進給比的影響
旋輪進給比是指芯模每旋轉一周,旋輪沿工件母線的進給量,進給比對工件直徑的脹縮和工件質量有著顯著影響。進給比的增大有助于工件的縮徑,但過大的進給比將引起旋輪前材料堆積嚴重,甚至會因材料堆積過多而造成旋壓無法繼續進行。
TC4鈦合金筒形件旋壓過程中發現,當進給比增大至1.7ram/轉時,材料堆積嚴重,旋壓后制件表面產生嚴重的疊皮現象,如圖6a所示。經打磨觀察發現,該疊皮厚度達2ram,造成制件厚度不均,滿足不了制件的技術要求。

反之,進給比的降低會提高工件表面質量,但會引起工件擴徑,甚至會引起一些脆性材料的表面產生魚鱗狀起皮現象。TC4鈦合金筒形件旋壓進給比取0.3ram/轉時,旋壓制件出現明顯的扭曲現象。經測量,制件擴徑量達到2.5ram左右。擴徑是導致制件扭曲及直線度差的主要因素。
經分析研究后,取進給比為1.1mmft4專,對TC4鈦合金筒形件進行旋壓成形。旋壓過程中,材料變形穩定;旋壓成形后,經檢測制件的直線度、內徑和壁厚均達到了試驗方案提出的要求。旋壓成形的筒形件表面如圖6b所示。
4.3壁厚減薄率的影響
減薄率反映工件的變形程度。筒形件強力旋壓時道次減薄率過大會造成工件畸變增大,精度下降,表面出現波紋、折疊、疊皮等疵病,甚至會導致工件發生破裂現象。TC4鈦合金筒形件旋壓試驗中,當道次減薄率達到40%1t寸,隨著旋壓成形的不斷進行,工件開始出現扭曲,扭曲不斷加劇,最后造成工件破裂,如圖7a所示。反之,道次減薄率過小則會增加工件厚度上的變形不均勻性而使制件精度變差,甚至使工件內表面因變形不充分而造成拉裂現象。TC4鈦合金筒形件旋壓試驗中,當道次減薄率僅為15%時,制件內表面因變形不充分而造成拉裂,如圖7b所示。通過試驗,確定TC4鈦合金的道次減薄率為30%~20%。在此范圍內,旋壓成形穩定,材料沿壁 厚方向組織均勻,工件形狀及尺寸精度均達到圖紙要求。

5、結論
(1)采用擠壓坯料,經加熱旋壓成形TC4鈦合金筒形件的工藝是可行的,按照該工藝方案試制的筒形件符合制件技術條件的要求。
(2)加熱溫度為600℃~750℃、旋輪進給比為0.8~1.2mm/轉、道次減薄率為30%~20%時,TC4鈦合金筒形件旋壓成形穩定。
(3)采用加熱旋壓_固溶處理_加熱旋壓一時效處理的順序進行TC4鈦合金筒形件的加工成形是合理的,避免了制件的熱處理變形,省去了熱處理后的精密整形工序,既保證了制件的形狀和尺寸精度,又達到了制件技術條件規定的機械性能要求。
(4)TC4鈦合金簡形件加熱旋壓成形工藝的成功為開展大批量的鈦質薄壁筒形件及管材生產提供了參考,促進了鈦及鈦合金在航空航天、兵器、船舶等工業中的應用。
參考文獻
[1]王金友,葛志明,周彥邦.航空用鈦合金【M】.上海:上??茖W技術出版社.1985.
[2]《中國航空材料手冊》編輯委員會.中國航空材料手冊(第四卷):鈦合金、銅合金【M】.北京:中國標準出版社,2001.
[3]劉全明,張朝暉等.鈦合金在航空航天及武器裝備領域的應用與發展【J】鋼鐵研究學報,2015,27(3):1—4
[4]金和喜,魏克湘等.航空用鈦合金研究進展【J】.中國有色金屬學報,2015.25(2):280—292
[5]朱知壽.我國航空用鈦合金技術研究現狀及發展【J】.航空材料學報,2014,(34):44~50
[6]趙云豪.旋壓技術現狀[J]鍛壓技術,2005,(5):95—100
[7]李繼貞,李志強等.我國旋壓技術的現狀與發展【J】.鍛壓技術,2005,增刊:17—20
[8]王成和,劉克璋等.旋壓技術[M】.福州:福建科學技術出版社,2017.
[9]汪發春,沈健,趙云豪.TB2鈦合金熱壓縮變形流變應力【J】_稀有金屬,2007,3l(6):732—736
[10]趙云豪,汪發春.沈健.TB2鈦合金筒形件旋壓變形組織性能的研究[J]I鍛壓技術,2007,32(6):87~94
[11]趙云豪,李彥利.旋壓技術與應用[M】.北京:機械工業出版社,2007.
[12]汪發春,趙云豪.薄壁殼體變薄旋壓成形試驗研究[J].新技術新工藝,2005,(9):37~38
[13]毛柏平,汪發春等.鈦合金旋壓性能的試驗研究[J].稀有金屬,2004,28(1):27l~273
[14]陳適先,賈文鐸等.強力旋壓T藝與設備[M】.北京國防T業出版社,1986.
[15]張翥,謝水生等.鈦材塑性加工技術[M】.北京:冶金工業出版社,2010.
第一作者簡介:汪發春,男,1977年生,漢族,工程師,碩士,從事金屬材料旋壓成形及熱處理工藝技術研究。
無相關信息bjlkty.com
立坤鈦業手機網